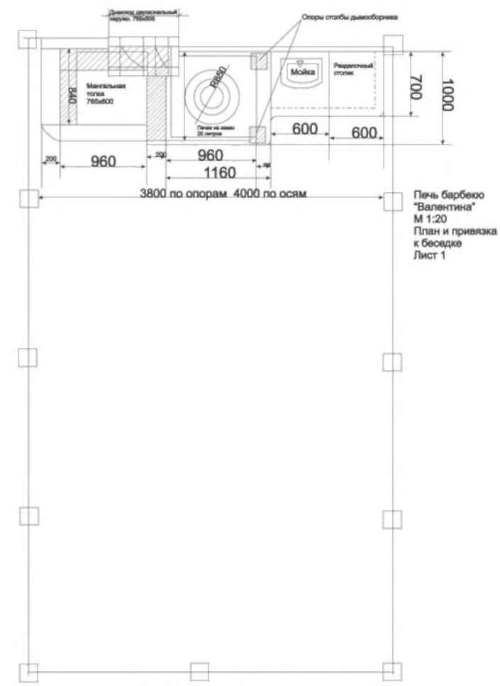
Проект. Печь-барбекю «Валентина». Н. Матвиенко
Проект. Печь-барбекю «Валентина». H. Матвиенко
Проект. Печь-барбекю. П. Матвиенко
Проект. Печь-барбекю. H. Матвиенко
Карта сайта | © www.warmfires.ru.