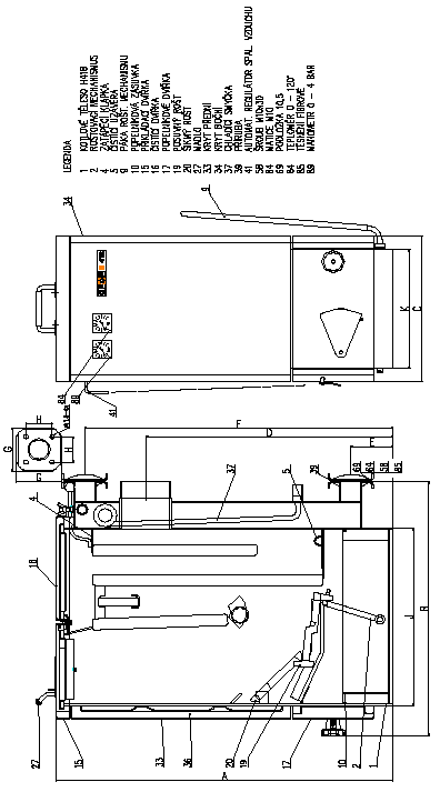
Основные размеры
Табл. 1 к рис. 2

Рис. 1 - котлы H412

Рис. 2 - котлы H418

Рис. 3 - котлы H424


Смотрите также
Памятка потребителя
ЗАБОТЯСЬ О ТОМ, ЧТОБЫ ВЫ БЫЛИ ДОВОЛЬНЫ
НАШИМ ИЗДЕЛИЕМ, МЫ РЕКОМЕНДУЕМ ВАМ
СОБЛЮДАТЬ ЭТИ ОСНОВНЫЕ ПРИНЦИПЫ
ДЛИТЕЛЬНОГО СРОКА СЛУЖБЫ И ИСПРАВНОЙ
РАБОТЫ КОТЛА.
1. Монтаж, пусконаладочные работы котл ...
Недостатки обычных барабанных котлов по сравнению с котлами с
комбинированной циркуляцией
• Серьёзно ограничивается возможность быстрого пуска газовых
турбин в парогазовых установках.
• В процессе пуска интенсивность вредных выбросов в атмосферу
увеличивается в 10 раз.
• При высоких до ...
Инструкции по монтажу и применению расширительных сосудов высокого давления
для стальных котлов
1) Подводящий трубопровод к расширительному сосуду высокого
давления должен быть как можно более коротким и с возможностью
расширения. Расширительный сосуд неоходимо установить так, чтобы
исключить ...